本次為企業總部辦公室裝修方案,辦公室設計面積600平方,設計師將空間想象成一片空白,在其中不同的元素共同創建了一個開放的系統:滑動墻壁、曲線形狀的會議室、社交區域、桌子和工作和放松用的各種設備,可以自由放置組合,為企業總部辦公室,打造一個全新的視覺形象和室內空間。
▼設計概念

▼設計概念

▼空間軸側

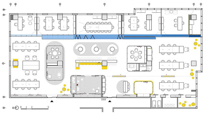
▼平面圖

▼辦公室入口

▼擁有滑動墻壁的辦公室




▼自由開放的辦公室空間


▼開放的規劃,讓使用者可以在其中,自由地移動或者選擇新的路徑


▼會面空間




▼會面空間解析

▼隨意組合的空間,像組合式游戲板、或由空隙和體塊重構的游樂場





▼咖啡區對側的多媒體房間,可根據實際使用功能改變空間構成



本次企業總部辦公室裝修方案講解到此結束,設計師希望為企業總部辦公室,打造一個全新的視覺形象和室內空間,人們可以在其中自由地移動或者選擇新的路徑,并在靈活和活潑的空間中被激發靈感。